ifix和PLC在石灰石粉磨控制中的实际应用
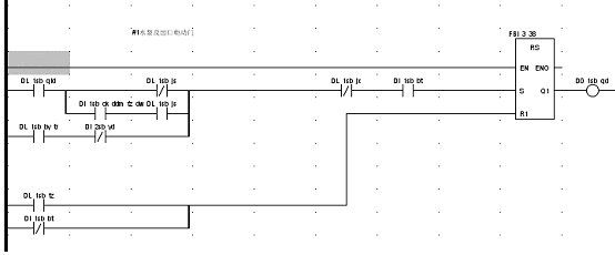
| 放置)→OK。 一般情况下,1和16槽放置电源模块 2槽放置CPU模块 3槽防止主I/O通讯模块 4和5槽放置冗余的以太网通讯模块 6至15槽放置I/O模块。 硬件组态图如下: ![]() 5软件组态 在该系统中,上位机采用ifix3.5组态软件,下位机采用Modicon Quantum系列的Concept2.6编程软件。 1、 人机界面组态 (1) 工艺流程图:该画面通过编程实现动态模拟显示整个石灰石粉制备的过程——从上料、进磨到出粉再到仓储。实现整个生产过程中各个运行设备的程控启停以及各个运行设备的单体操作,并对故障进行实时诊断。 (2) 系统操作功能:它有自动和手动两种工作方式,正常运行时采用自动方式,故障和调试时采用手动方式。它由PID控制回路实现对一些重要的模拟量数据的精确控制,以达到期望值。 (3) 报警记录:实时地发出所有发生故障的参数的声光报警,提醒值班人员采取相应的措施。 (4) 实时曲线:在线监视所有重要参数的实时变化,以便提前采取维持正常参数的措施和手段。 (5) 历史曲线:检查过去的数据记录,以便发生故障时,分析出故障原因。 (6) 报表打印:按不同的时间段实现统计与计量。 2、 PLC控制程序设计 PLC采用Modicon Quantum系列 Concept2.6编程软件。Concept适用与所有的Windows操作系统,强大的梯形图面向用户,其电路图符号和表达式与继电器电路原理图非常接近,控制过程形象、直观、易于掌握、易于修改。有实用的功能块和在线仿真功能,并且不需要停止CPU运行,就可以下载修改的配置与逻辑。丰富的功能可以满足系统的各种要求。下图是冷却水泵的启动/停止逻辑: ![]() 冷却水系统由两台冷却水泵及冷却水泵出口电动门组成。两台冷却水泵一用一备,当启动其中的一台冷却水泵后,必须投入另一台冷却水泵备用,以保证这台冷却水泵故障停泵时另一台冷却水泵自启,也就保证了冷却水系统的正常运行,进而保证了石灰石粉磨系统的安全、可靠、稳定的运行。冷却水泵与冷却水泵出口电动门之间联锁,冷却水泵出口电动门在关闭位置才允许启动冷却水泵。在联锁解除时,可以单体操作冷却水泵,实现冷却水泵的检修调试。 6系统通讯功能 Modicon Quantum系列PLC可编程序控制器利用其先进灵活的通信方式,方便地组成了PLC处理器与就地控制柜、远程控制柜、计算机工作站及其电子设备之间的通讯,其通讯方式是多渠道、多方式的。 7结束语 本控制系统功能全面,可靠性高,操作简单实用,提高了劳动生产率,避免了由于操作人员操作失误而造成的事故,改善了现场操作人员的劳动条件,对提高石灰石粉磨管理水平,保证设备安全稳定运行起到了很好的促进作用。并已在生产上得到实际应用,为企业带来了可观的经济效益和良好的社会效益。 |


