德国BERGER LAHR机器人在涂胶系统中的应用
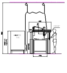
| 随着制造业的不断发展,使得百格拉公司机器人在码垛、涂胶、点焊、弧焊、喷涂、搬运、测量等行业有着相当广泛的应用。本文针对百格拉公司涂胶机系统进行简要的介绍。 德国百格拉公司是世界上最著名的机器人供应商之一,生产多种规格的直线运动单元/导轨、步进电机、交流伺服电机、直线电机和多轴数控系统。以此为基础,在短时间内可提供各种规格的线性导轨、二维、三维标准机器人及用户专用机器人和生产线。这些机器人可以装备胶枪、通用手爪或专用工具,完成对工件的涂胶工作工作。由于百格拉的导轨、驱动电机、减速机和控制系统等所有部件全部自己生产,使得机器人整体性能更加优异。 设计一个涂胶系统的首要任务是根据机器人所要完成的工作,先确定机器人的结构组成。可以是龙门式,挂壁安装式等。再按工作要求所给出各轴的运动行程、负载、运动速度、加速度,动作周期来选每个运动轴直线运动单元的型号,所配驱动电机及所配NEUGART精密行星减速机的型号。图1是一个典型的三维机器人涂胶系统的现场布置情况,图2是涂胶系统的机械部分的布置情况。 ![]() ![]() 下面即以此系统为例对涂胶系统进行深入的阐述。 此系统是来实现汽车的顶棚横梁和发动机盖的不同型号工件的涂胶工作,首先根据胶枪的重量来选择机器人系统的负载能力,一般来说,此种胶枪的重量不会很重,所以只要选择轻负载能力的导轨系统即可。但是由于工件的数量比较多(从图3可以看出此系统是完成7种工件的涂胶和点胶的工作),涂点的数量也很多,这就要选择一个高速的涂胶系统,而这正是百格拉导轨系统所具备的特性(百格拉导轨系统可以实现最快5m/s的高速精确定位)。这样根据工作频率的要求即可选出电机的配置。最后根据工件的布置情况来选择导轨的有效行程(工件的布置情况如图3,有效行程为1200mm*1200mm*300mm)。 ![]() 此直角坐标机器人系统在工作台上安装图3中7种工件的夹具。在工作台上设有车型按扭,按下相应的车型按扭,相对应的工件指示灯(按扭式)黄灯亮,同时工件的自动检测到位开关开始工作,操作工按相应工件装夹后,工件到位检测绿灯亮,此时方可按下机器人起动按扭,机器开始按程序设定的相应车型的相应工件自动点胶;点胶完毕机器人自动复位,程序结束指示灯亮;取下工件后,程序结束指示灯灭;如果不更改车型或工件型号,系统将默认上次程序内容进行工作直至更改车型或工件; 同时,系统可在不按下车型按扭情况下工作,操作工可自由选择工件,可单件或几种工件一起组合,按下相应的工件指示灯(按扭式),相应工件的自动检测开关开始工作,红灯亮,装夹好相应的工件后,工件到位检测绿灯亮后,方可按下机器人起动按扭,机器人按检测到的工件自动调用相应的程序自动点胶;点胶完毕机器人自动复位,程序结束指示灯亮;同样,如果不更改工件号或工件组合,系统将默认上次程序内容进行工作直至更改工件或工件组合; 系统还设有紧急停止按扭,可手动、自动停止;机器人支承架工作范围内装有光栅安全系统,在故障或异常情况下报警信号灯亮,系统紧急停止,在手动状态下排除报警后系统方 可继续运行;有自动记忆功能,在停电或故障情况后可继续完成工作。此系统的工艺流程如图4。 ![]() 此涂胶系统的控制部分选用德国Engelhardt公司数控系统。Engelhardt公 司数控系统有着如下的特点: 1 有8种操作方式:MDI、程序输入、图形功能、单步、自动、外部数据通讯、程序管理和示教方式。还可开发用户自己的界面。 2 有常用的G代码:G00、G01、G02、G03、G04、G0、G06。 3 图形功能:图形功能非常方便,图形的开始点通过按键可任意移动,图示有单步图示,图示部分程序段和对工件进行缩小和放大进行图示。所有功能通过按键可以实现 4 最小执行单位:X轴1μM,Z轴1μM。 5 有绝对值编程(G90)和增量值编程(G91),软限位(G67和G68)。 6 有宏指令和参数编程。CNC有极强的二次开发能力和高度开放的PLC功能。 7 由于采用高速CPU和段预读功能,保持程序段间无停顿,连续匀速运动。 8 用口令来封锁对机械数据的操作和程序输入,输出,删除,复制,CNC的操作非常简便。 CNC硬件上的优点: 1 CNC是双CPU。一个是工业用MOTOROLA公司的M68000系列32位单片机。它用于各种插补运算。一个是Z80单片机。它用于图形和键盘功能。 2 采用了超高集成度的门阵列器件使CNC系统器件少,体积小,可靠性高。 3 CNC抗静电干扰能力是9000V。沈阳第一机床厂的蒋厂长, 段总和王九峰在参观ENGELHARDT公司时看到了现场表演。通过10多次不同方位的干扰CNC都正常工作。 接触式抗静电放电干扰能力:±9000V(从不同位置连续数十次,) 抗电中断能力:50Hz内连续掉点5Hz后再上电,如此反复循环,能正常工作抗电源拉偏:最低到本135VAC,CNC能正常工作。 浪涌抗扰性:4000V。 4 所有18路输入和18路输出是光电隔离的。 5 有控制变频器的D/A转换器。可直接控制变频器来实现恒线速切削。 6 已经带有手轮脉冲发生器,CNC和驱动器的连线都非常简单。。 7 操作面板上带有所有手动功能的按键。如速度倍率旋钮,"STOP"键,启动键"START",清除键"C",选参考点键,选择主轴方向键,速度键,冷却键,刀具键和机床锁住键。不需要再配面板和按键了。 8 CNC键盘上的按键是真正的机械式开关。而且键盘是防水的。 9 带手轮脉冲发生器,每个脉冲可移动1,0.1, 0.01或0.001mm。 此系统对操作员不需要任何编程经验,很复杂的任务可以在几分钟内设置好。操作员经过几小时的培训就可以完全掌握该系统。 综上所述,采用百格拉公司的机器人后使涂胶和点胶的工作效率大为提高。省去大量人力,大量降低成人工成本。该机器人运行一年后就可收回所投入的成本。该机器人在正常维护下至少运行十年。随着大批量全自动化涂胶生产线的兴起,此涂胶系统将具有更加广范的市场前景和发展潜力! |




